For Sale

Agar Road, West Derby, Liverpool, L11

Semi-Detached House
£250,000
3 Bedrooms
1 Bathrooms
1 Receptions

Property Features

  • Fantastic Three Bedroom Semi Detached Home
  • Located In Highly Favoured Area Of West Derby
  • Generously Proportioned & Beautifully Finished
  • Entrance Hall & Open Plan Living/Dining Space
  • Modern Kitchen & Convenient Downstairs WC
  • Three Bright & Impeccably Finished Bedrooms
  • Deluxe Contemporary Three-Piece Bathroom
  • Delightful Garden & Ample Off-Road Parking

Property Summary

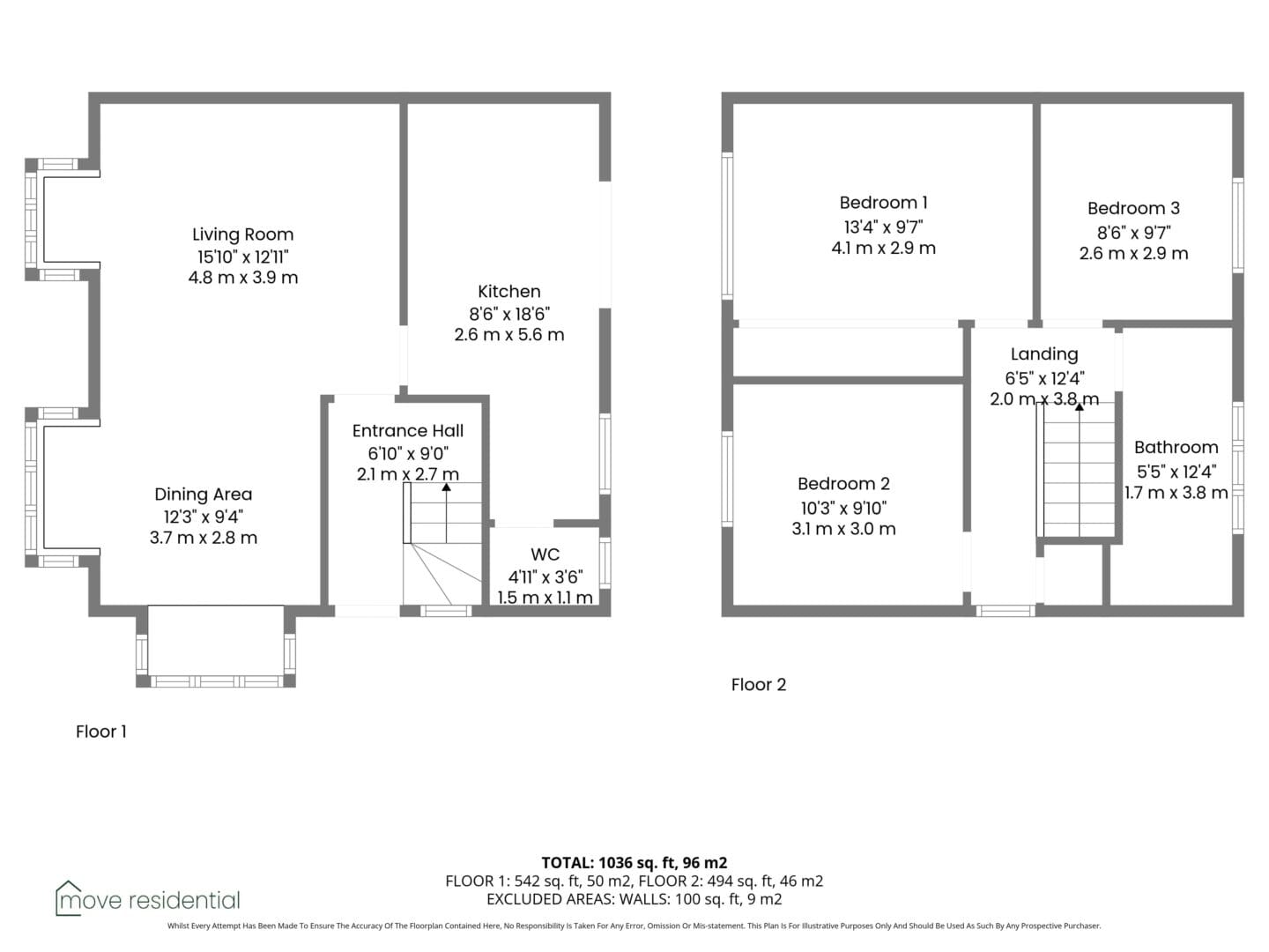
Located on Agar Road in the favoured residential area of West Derby, L11, is this fantastic three bedroom semi detached property, arriving at the sales market courtesy of appointed agents Move Residential. Generously proportioned and impeccably presented throughout, this promises to make a wonderful future home for a growing family.
An inviting entrance hall greets you into the property, leading through to a spacious open plan living and dining area, enjoying two box bay windows which flood the space with natural light. Beautifully finished in a fresh contemporary décor, featuring attractive wood style flooring, this presents a welcoming social setting for relaxing and sharing mealtimes with family and friends. Continuing through, you will find a modern fitted kitchen complete with a range of stylish base and wall units, complementary worktops providing plentiful surface space, and a set of french doors offering seamless access out to the garden. Concluding the ground floor is a convenient WC.
Continuing up to the first floor, you will find three well-proportioned bedrooms, each immaculately finished featuring plush carpeting throughout, with the master further enjoying chic wall panelling and fitted wardrobes. Accompanying the sleeping accommodation and adding the finishing touch to the interior of this fabulous home is a deluxe three-piece family bathroom suite.
Externally, the property further benefits from a delightful garden consisting of a low-maintenance artificial lawn and flagged patio area, whilst a substantial driveway provides ample off-road parking.

Ready To Move?

Book a free, no obligation property valuation with the regions most trusted estate agent.

Need A Mortgage?

We work with Move Financial, a 5-star rated mortgage brokerage with dedicated advisors handling everything on your behalf.

Unsure of Legal costs?

Get an instant quote for your legal fees for your home move from our recommended conveyancer KMC Legal.