For Sale

Oldfield Chase, Heswall, Wirral

Land
Guide Price
£300,000 Guide Price
3 Bedrooms
2 Bathrooms
3 Receptions

Property Features

  • Excellent Opportunity - Plot of Land in an Exclusive Residential Area
  • Approved Plans for a Bespoke Three Bedroom Detached Residence
  • Hallway, Storage, Downstairs W.C and Spacious Front to Back Lounge
  • Generous Sized Open Plan Living Kitchen Diner with Utility Room
  • Two Sets of Bi-Folding Doors for Seamless Outdoor/Indoor Living
  • Three Well Proportioned Bedrooms, En Suite and Family Bathroom
  • Driveway, Garage and a Generous Enclosed Private Rear Garden
  • Further Details Available in Our Office - Call for Further Information

Property Summary



Guide Price £300,000 - £350,000




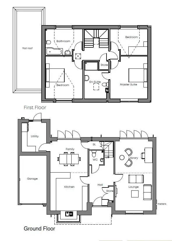
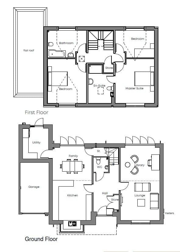
An excellent opportunity has arisen to acquire a prime plot of land with full planning permission for a luxurious three bedroom detached residence, ideally situated within the highly sought after development of The Chase in the prestigious area of Heswall. This exclusive development has already been completed to an exceptional standard, with neighbouring properties sold and occupied, creating a welcoming and desirable community atmosphere.


The approved plans outline a magnificent home spanning approximately 1,800 square feet, designed with modern living and luxury in mind. Upon entering, you are greeted by a spacious hallway with convenient storage and a downstairs W.C. To the right, a generously proportioned lounge stretches the full depth of the property, featuring bi folding doors that open seamlessly onto the rear garden. At the heart of the home lies a stunning open plan living kitchen and dining area, perfect for contemporary family life, complete with another set of bi folding doors that flood the space with natural light and provide effortless access to the outdoor entertaining area. A separate utility room completes the ground floor layout.


Upstairs, the design continues to impress with a master bedroom suite boasting an elegant en suite shower room, along with two further well proportioned bedrooms and a luxurious family bathroom. Externally, the property benefits from a private driveway, garage, and an enclosed rear garden, a tranquil space ideal for relaxing or entertaining. The double bi folding doors create a true sense of indoor outdoor living, making this the perfect home for both family life and social occasions.


This represents a rare opportunity to create a bespoke home in one of Heswall’s most prestigious developments, an ideal investment for those seeking luxury, location, and lifestyle.

Ready To Move?

Book a free, no obligation property valuation with the regions most trusted estate agent.

Need A Mortgage?

We work with Move Financial, a 5-star rated mortgage brokerage with dedicated advisors handling everything on your behalf.

Unsure of Legal costs?

Get an instant quote for your legal fees for your home move from our recommended conveyancer KMC Legal.